Сдаю 138,6 м2 помещение
Стоимость аренды
100000
руб./месяц
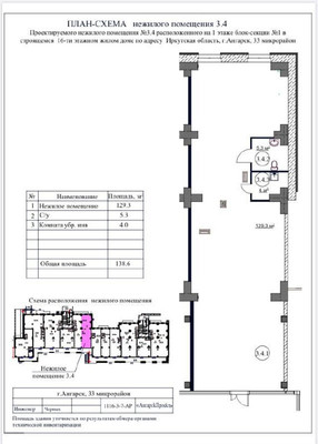
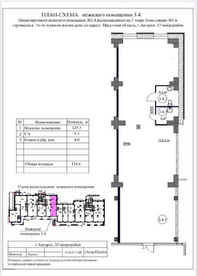
Арт. 68836972 Сдаётся в аренду помещение площадью 138,6 кв.м. свободного назначения по адресу Иркутская обл., г. Ангарск, ул. 33 микрорайон, дом 25
Помещение находится в центре г. Ангарск , в густонаселенном жилом комплексе и на первой линии. 1 линии, 1 этаже. Высокие двухуровневые потолки. Большой автомобильный и пешеходный трафик . Большая и удобная парковка у здания и на основной автотрассе, нет необходимости заехать на вторую парковку рядом с помещение. Большие и удобные подъездные пути к помещению (зданию) с парковкой на 50 и более авто Перегородки на два СУ с мокрыми точками. Ремонт по договоренности. Каникулы предусмотрены. Панорамные окна. Окна в две стороны. Подключены все коммуникации. Отдельный вход, Это помещение идеально подходит для магазинов, медицинских и сервисных центров, офисов, выдача товаров, предоставления различных услуг и так далее. Кроме того, это прекрасный вариант для инвестиций. Звоните, отвечу на все интересующие вопросы, проведу показ.Коркунов Хуршед. #8677338# Общая стоимость: 100000 руб./месяц Этаж/этажность: 1/16 Агентам: Не звонить |
2160105 25 Февраля 2025 просмотров 35 |
Добавить комментарий
Похожие объявления




































